Villa singola in vendita

Nichelino, Via Consolata - Oltre Stazione
€ 350.000
10 locali 10 locali
300 Mq 300 Mq
4 bagni 4 bagni

Villa singola in vendita

Nichelino, Via Consolata - Oltre Stazione

Descrizione annuncio

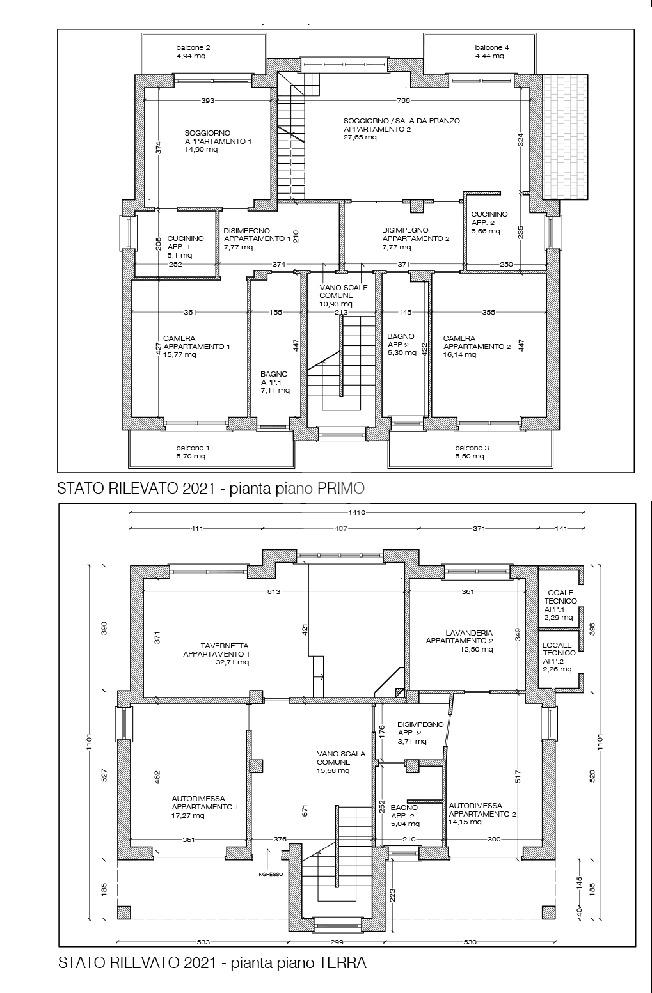
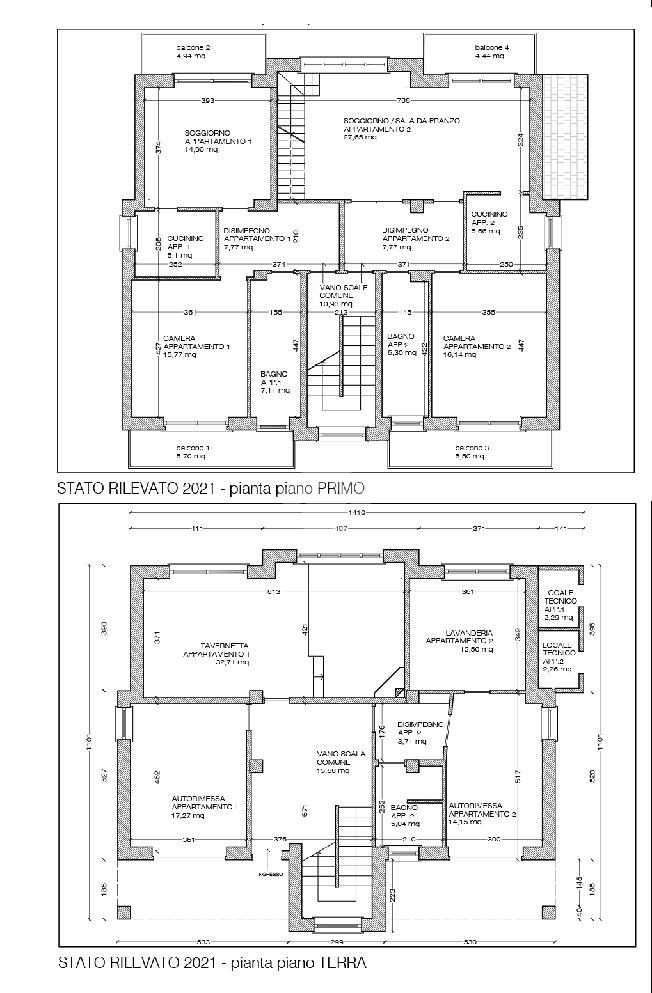
Nel comune di Nichelino, nella tranquilla località di Oltre Stazione, è disponibile per la vendita una villa indipendente di circa 300 mq, costruita negli anni 70. Questa proprietà si distingue per la sua ampia metratura, offrendo spazi generosi e versatili. La villa si sviluppa su più livelli, permettendo una distribuzione funzionale degli ambienti. Nella porprietà sono già state eseguite le opere di demolizione interna, un'opportunità unica per chi desidera personalizzare la propria abitazione, adattandola alle proprie esigenze e gusti. La struttura si presta a diventare una bifamiliare, grazie alla possibilità di creare ingressi indipendenti. È possibile suddividere la villa per piano o in altezza, lasciando a ciascun lato un accesso autonomo. Questa caratteristica rende l'immobile ideale per famiglie numerose o per chi cerca una soluzione abitativa che possa ospitare più nuclei familiari, garantendo al contempo privacy e indipendenza. Completa la proprietà un terreno di circa 500 mq

Mostra tutto

Nelle vicinanze

Trasporto pubblico Trasporto pubblico
Nichelino
Nichelino
1,9 Km
Candiolo
Candiolo
2,9 Km
Sestriere
Sestriere
270 m
Sant'Anna
Sant'Anna
280 m
Ricariche auto elettriche Ricariche auto elettriche
Nichelino Via Torino | EnelX
330 m
Nichelino Amendola | EnelX
1,9 Km
Nichelino Segre | EnelX
2,0 Km
Municipio di Nichelino | EnelX
2,5 Km
Nichelino Kennedy | EnelX
2,6 Km
Scuole Scuole
Scuola media
970 m
Elementare Papa Giovanni XXIII
1,6 Km
Istituto Comprensivo IV
1,9 Km
Elementare Marco Polo
2,3 Km
Istituto di Istruzione Superiore James Clerk Maxwell
2,5 Km
Farmacia Farmacia
Farmacia
390 m
Farmacia Della Stazione
2,0 Km
Farmacia Dallocchio
2,6 Km
Farmacia Largo Giusti
2,8 Km
Farmacia Salus
3,0 Km
Supermercati Supermercati
Bennet
510 m
Coop
2,0 Km
docks
2,5 Km
Lidl
2,6 Km
Ekom
2,6 Km
Negozi Negozi
Kiabi
440 m
Negozi
980 m
Intimo Corinne
2,4 Km
Conbipel
2,9 Km
OVS
2,9 Km
Bar Bar
Bar
900 m
Centro Comitato Castello
2,0 Km
Caffè Villa Reale
2,5 Km
SARA S.a.S.
2,7 Km
Ristoranti Ristoranti
RoadHouse Nichelino
550 m
Churrascaria
1,0 Km
Ristoranti
1,6 Km
Ristorante Mistral
2,3 Km
Ristorante Sabaudia
2,4 Km
Mostra tutto

Caratteristiche

Rif.:
61129807
Piano:
Su più livelli di 2
Totale piani:
2
Box:
1
Posti auto:
1
Balconi:
4
Mostra tutto
Prezzo Prezzo
€ 350.000
Rata mutuo Rata mutuo
€ 1.650 / mese
Proponi il tuo prezzoProponi il tuo prezzo

Classe Energetica

F
F
F
F
F
F
F
F
F
EP globale non rinnovabile:
312.77 kW h/m² anno
EP globale rinnovabile:
0.00 kW h/m² anno
EP invernale del fabbricato:
EP estiva del fabbricato:
Riscaldamento:
Autonomo
Tipo impianto:
A radiatori
Tipo alimentazione:
Metano

Ti interessa visionare l'immobile?

Fissa un appuntamento  Fissa un appuntamento

Richiedi informazioni

Clicca su Leggi per aprire l'informativa
* Questi campi sono obbligatori

Calcola il tuo mutuo

Semplice e senza impegno
Anticipo

( % )
Mutuo

( % )

pochi semplici passi

inserisci i tuoi dati
Questionario completato
Grazie per aver richiesto un appuntamento senza impegno con un nostro Consulente del Credito e Assicurativo.

Hai inserito correttamente tutti i dati necessari e a breve riceverai una e-mail con un link da convalidare per inviare i tuoi dati.
Affiliato
Studio 4 Mori Sas
Via Monastir, 22/B 10122 Torino (TO)
Via Monastir, 22/B 10122 Torino (TO)
Zona: Mirafiori-Mercato Via O.Vigliani
Mostra su mappa
Affiliato
Studio 4 Mori Sas
Via Monastir, 22/B 10122 Torino (TO)

2025 Tecnocasa Franchising S.p.A. - P. IVA 08365160152 - Via Monte Bianco 60/A 20089 Rozzano (MI). Ogni agenzia ha un proprio titolare ed è autonoma. Privacy policy | Policy utilizzo | Cookie policy